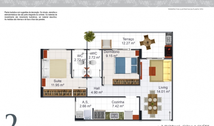
Residencial Barcelona

2 Dormitorio(s)

1 Suite

2 Banheiro(s)

73.338 a 75.93m2 de Area Privativa

Lazer Completo

2 Vaga(s) de Garagem

Residencial Barcelona


Informações Técnicas

- 16 andares ( 2 de garagem, 14 de aptos)
- Qtde de Apartamentos por andar: 8 (exceto o 1º andar: 2)
- Total de Apartamentos: 106
- Vagas de Garagem Livres
- 2 elevadores (social e serviço)
- Acesso para banhistas
- Piscina Adulto
- Piscina Infantil
- Sauna
- Área de convívio
- Academia
- Playground
- Salão de jogos adulto
- Salão de jogos infantil
- Salão de festas
- Bicicletário
- Rampa para PNE
- Paisagismo
- Gás (relógio individual)
- Água (relógio coletivo)
- Instalação de sistema para ar condicionado split nos dormitórios
- Portão Eletrônico
- Preparado para instalação das câmeras de segurança
- Sistema de Comunicação


Estágio da Obra

FUNDAÇÃO:  
 100%
ESTRUTURA:  
 100%
TERRAPLANAGEM:  
 100%
INSTALAÇÕES:  
 100%
PAREDES:  
 100%
ACABAMENTO:  
 100%

Fotos da Obra

Clique nas categorias acima para exibir.

SIGA-NOS NAS REDES

AV. BRASIL, 600 - SALA 504

BOQUEIRÃO • PRAIA GRANDE

13 3481.3126
13 3596.4891